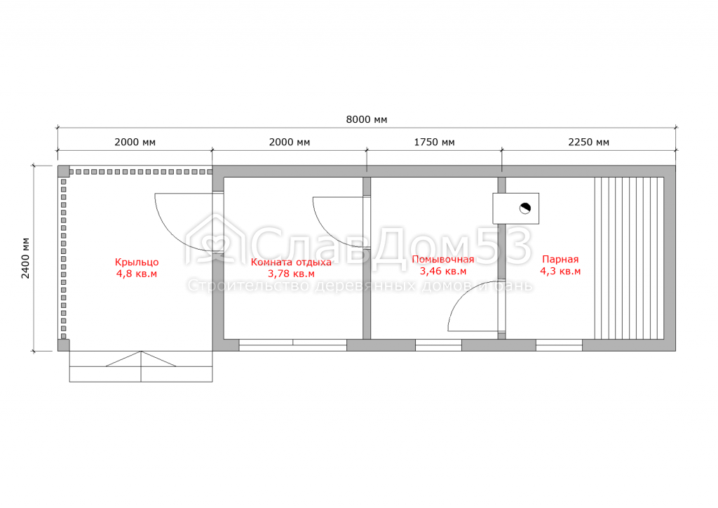
Проект МБ-5. Мобильная баня 8х2,3м

Сообщение об ошибке

  • Notice: Trying to get property of non-object в функции am_gal_panels_pane_content_alter() (строка 168 в файле /var/www/slavdom53/data/www/slavdom53.ru/sites/all/modules/am_gal/am_gal.module).
  • Notice: Trying to get property of non-object в функции am_gal_panels_pane_content_alter() (строка 168 в файле /var/www/slavdom53/data/www/slavdom53.ru/sites/all/modules/am_gal/am_gal.module).
  • Notice: Trying to get property of non-object в функции am_gal_panels_pane_content_alter() (строка 168 в файле /var/www/slavdom53/data/www/slavdom53.ru/sites/all/modules/am_gal/am_gal.module).
  • Notice: Trying to get property of non-object в функции am_gal_panels_pane_content_alter() (строка 168 в файле /var/www/slavdom53/data/www/slavdom53.ru/sites/all/modules/am_gal/am_gal.module).
  • Notice: Trying to get property of non-object в функции am_gal_panels_pane_content_alter() (строка 168 в файле /var/www/slavdom53/data/www/slavdom53.ru/sites/all/modules/am_gal/am_gal.module).
Размер:
8х2,3
Общая площадь:
18,4
Количество этажей:
Мобильная баня
Срок строительства:
3-5
Цена «Под ключ»
Проф. брус 100×150
По запросу
Проф. брус 150×150
По запросу
Цена «Под ключ»
Тёплая стена 100 мм.
515 000 руб.
Тёплая стена 150 мм.
По запросу
Ваш путь к готовому дому или бане
Шаг 1. Определите ваши пожелания
Выберите проект из каталога или определите
для себя желаемый размер, планировку и
бюджет.
Шаг 2. Оставьте заявку
Свяжитесь с нами удобным для вас способом,
указав выбранный проект и желаемую
комплектацию.
Шаг 3. Бесплатная консультация
Обсудим все пожелания, при необходимости
бесплатно доработаем планировку и
адаптируем проект под вас.
Шаг 4. Точный расчет стоимости
Составляем техническое задание и
озвучиваем точную стоимость строительства
без каких-либо скрытых расходов.
Шаг 5. Заключение договора
Согласовываем официальный договор, в котором
фиксируем все важные аспекты: цену, сроки,
гарантии и прочие детали.
Шаг 6. Подготовка к строительству
Мы заготавливаем стройматериалы, проверяем их
качество, комплектуем машину и готовимся
выезжать к вам.
Шаг 7. Выезд на ваш участок
Согласовываем дату заезда. В назначенный
день на участок доставляется весь комплект
материалов и строительная бригада.
Шаг 8. Сборка строения
Мастера собирают объект по техническому
заданию. По желанию присылаем
фотоотчеты о ходе работ.
Шаг 9. Прием готового объекта
Вместе осматриваем готовое строение,
проверяем качество. Если все в порядке,
подписываем акт.
Шаг 10. Официальная гарантия
Мы предоставляем официальную гарантию на
материалы и работы. Теперь вы можете
наслаждаться своим новым домом или баней.

Дополнительные услуги

Дополнительная опора столбчатого фундамента
800 руб
Свайно-винтовой фундамент
по запросу
Дополнительный венец профилированного бруса
по запросу
Дополнительная межкомнатная перегородка
по запросу
Сборка сруба на деревянные нагеля
от 3 000 руб за ряд
Сборка сруба на пружинный узел "Сила"
по запросу
Угловое соединение «теплый угол» (шип-паз)
от 3 000 руб за ряд
Установка водосточной системы
по запросу
Дополнительное утепление минеральной ватой 50мм
по запросу
Установка однокамерного деревянного окна 1х1,20м
6 000 руб
Установка железной двери (2070×670мм)
12 000 руб
Замена банной клиновой двери на стеклянную
9 000 руб
Замена деревянного однокамерного окна размером 1х1,20м на пластиковое однокамерное окно размером 1х1,20м
5 000 руб
Замена деревянного однокамерного окна размером 0,4х0,4м на пластиковое однокамерное окно размером 0,5х0,5м
4 000 руб
Монтаж металлических роек из уголка 40х40мм в оконный проем
1 500 руб
Монтаж металлических роек из уголка 40х40мм в дверной проем
3 000 руб
Замена кровли на металлочерепицу
по запросу
Замена бруса естественной влажности на сухой (камерная сушка)
по запросу
Работы (без учёта материала) по обработке / покраске фасадов дома
600 руб/м2
Строительная бытовка

Размер 2х3м

23 000 руб
Стол и лавка
по запросу
Аренда генератора

Бензин предоставляет Заказчик

13 000 руб
Спросить в МАХ или ТЕЛЕГРАММ

Заказать звонок

Заказать строительство

Напишите нам в эту форму, если Вы хотите оформить заказ на строительство по этому проекту, или если у Вас есть какой либо вопрос.

Также Вы можете позвонить нам по телефону:
+7 (996) 777-15-69, +7 (921) 706-00-28

Отправить проект

Если у вас есть свой проект или эскиз дома или бани, или Вы увидели интересный проект на другом сайте, Вы можете отправить его нам на расчет стоимости строительства. Для этого заполните форму ниже. Укажите максимум  информации, чтобы расчет был более точным. После расчета (1-2 дня) наш менеджер свяжется с Вами.

Максимальный размер файла: 2 МБ.
Разрешённые типы файлов: gif jpg jpeg png bmp eps tif pict psd pdf doc docx xls xlsx.
Максимальный размер файла: 2 МБ.
Разрешённые типы файлов: gif jpg jpeg png bmp eps tif pict psd rtf pdf doc docx xls xlsx.
Максимальный размер файла: 2 МБ.
Разрешённые типы файлов: gif jpg jpeg png bmp eps tif pict psd rtf pdf doc docx xls xlsx.

Если Вы загружаете свой проект, не
забудьте нажать кнопку «Закачать»,
иначе мы не получим файл