|
Фундамент |
Опорно-столбчатый, каждая опора состоит из четырех бетонных блоков, размером 200х200х400мм. (АКЦИЯ распространяется только при заказе установки такого фундамента)
|
 |
|
|
Основание |
Двойная обвязка - 2 ряда основания из нестроганного бруса сечением 100х150мм или 150х150мм (в зависимости от толщины стен), естественной влажности.
|
|
|
|
Лаги |
Выполнены из нестроганой доски сечением 40х150мм естественной влажности, с шагом 600мм, установленными на ребро
|
|
|
|
Полы |
Двойные, утепленные мин. ватой URSA (или аналог) 100мм, сверх утеплителя, с нахлестом по контуру монтируется пароизоляция Наноизол В (или аналог):
- черновые: к половым лагам прибивается брусок сечением 40х50мм, на него кладется обрезная нестроганная доска первого сорта 20мм естественной влажности, по черновому полу с нахлестом устраивается пароизоляция Наноизол В (или аналог)
- чистовые: половая шпунтованная доска 28мм, камерной сушки
|
    |
|
|
Первый этаж |
Высота потолков 2,10-2,20м (16 венцов).
|
|
|
|
Стены |
Строганный сухой (камерной сушки) профилированный брус 100х150 (в чистоте 90×140мм) или 150х150 (в чистоте 140×140мм) влажностью 15-20%, с наружной стороны прямой или выпуклый "под блок-хаус", с внутренней стороны прямой, между брусом прокладывается джутовое полотно. Сборка углов производится в "теплый угол" (шип-паз), межвенцовое соединение производится на деревянный нагель.
|
     |
|
|
Перегородки 1 этажа |
Прямой строганный сухой (камерной сушки)профилированный брус 100х150 (в чистоте 90х140мм) влажностью 15-20%, между брусом прокладывается джутовое полотно, межвенцовое соединение производится на деревянный нагель
|
  |
|
|
Потолки |
Подшиваются вагонкой класса «Б» камерной сушки, утепление мин. ваты URSA (или аналог) 100мм, предварительно под вагонку, с нахлестом по контуру монтируется пароизоляция Наноизол В (или аналог), гвозди для отделки оцинкованные
|
 |
|
|
Перекрытия |
Обрезная нестроганая доска сечением 40х150мм естественной влажности, с шагом 800мм, установленными на ребро
|
|
|
|
Крыша |
Двухскатная (прямая, ломанная или вальмовая в зависимости от проекта)
|
 |
|
|
Покрытие кровли |
Ондулин цвет на выбор (коричневого, зеленого, красного или графитового цвета)
|
 |
|
|
Стропильная система |
Каркас из нестроганой доски сечением 40х100мм естественной влажности
|
 |
|
|
Обрешетка |
Не сплошная, из обрезной нестроганой доски толщиной 20мм, с шагом 400мм
|
 |
|
|
Выносы крыши |
По периметру 20-30см, подшиты вагонкой камерной сушки класса «Б»
|
 |
|
|
Фронтоны |
Обшиты горизонтально вагонкой камерной сушки
|
 |
|
|
Наружные углы |
Обшиваются вертикально вагонкой камерной сушки
|
 |
|
|
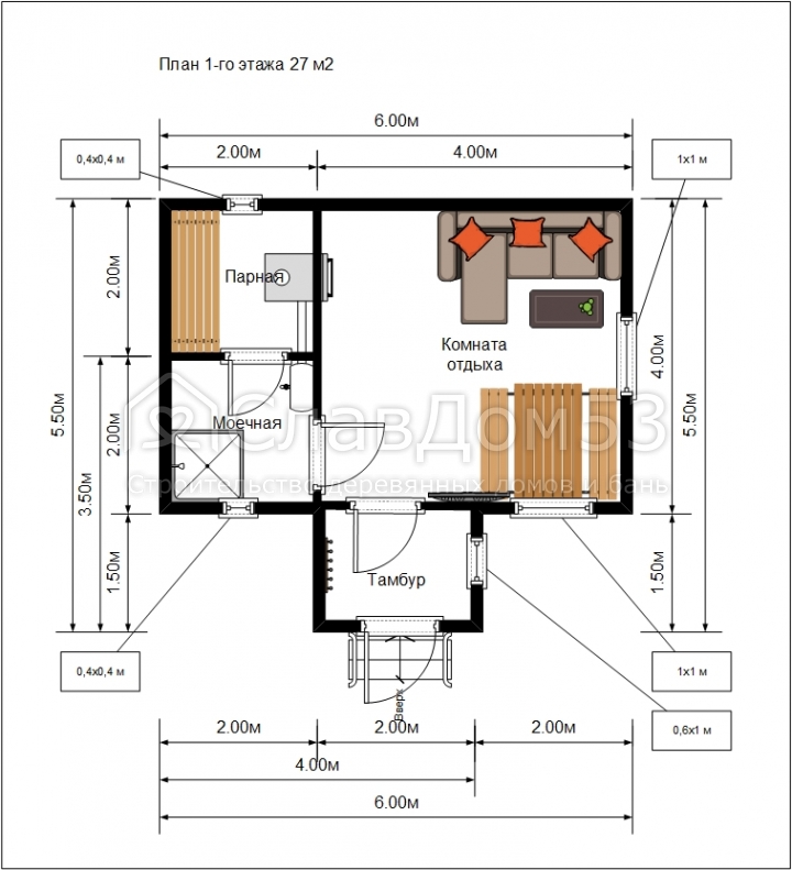
Моечное отделение |
Устанавливается душевой поддон 800х800мм или делаются полы под наклоном с установкой сливного трапа, в полы засыпается керамзит
|
   |
|
|
Парное отделение |
Стены и потолок обшиваются вагонкой из осины класса «А» (стыкованная), предварительно под вагонку по периметру всех стен и потолка прокладывается фольгированная кашированная бумага, устанавливаются прямые двухъярусные полки из строганной осины класса «А»
|
 |
|
|
Печь |
Устанавливается банная печь "Ермак 16" классический (сэндвич трубы, облицовка кирпичом, выносной бак на 60 литров ставится через теплообменник, ППУ, экран со светоотражающей поверхностью)
|
  |
|
|
Плинтус |
На стыки стен, пола и потолка устанавливается плинтус из хвойный пород дерева
В банях, в парном отделении, устанавливается плинтус из осины
|
|
|
|
Окна |
Деревянные однокамерные с фурнитурой, отделаны наличником (имитация стеклопакета)
|
 |
|
|
Двери |
Входная металлическая (производитель Россия), межкомнатные филенчатые и банные клиновые
Все двери отделаны наличником
|
   |
|
|
Доставка |
Бесплатно 500 км от г. Пестово Новгородской обл., далее 150 рублей за 1км
|
|
|
|
Сборка |
Входит в стоимость
|
|
|