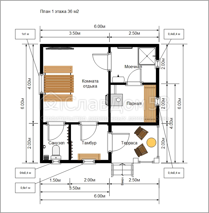
Проект Б-26. Баня из бруса 6х6м

Цена бани «Под усадку»
585 000 руб.
Проф. брус 100×150
659 000 руб.
Проф. брус 150×150
Цена бани «Под ключ - Эконом»
По запросу
Проф. брус 100×150
По запросу
Проф. брус 150×150
Цена бани «Под ключ - Элит»
899 000 руб.
Проф. брус 100×150
981 000 руб.
Проф. брус 150×150
Каркасный вариант
По запросу
Утепление 100 мм.
950 000 руб.
Утепление 150 мм.
Описание комплектаций
Фундамент

Опорно-столбчатый, каждая опора состоит из четырех бетонных блоков, размером 200х200х400мм. (АКЦИЯ распространяется только при заказе установки такого фундамента)

Основание

Двойная обвязка - 2 ряда основания из нестроганного бруса сечением 100х150мм или 150х150мм (в зависимости от толщины стен), естественной влажности.

Лаги

Выполнены из нестроганой доски сечением 40х150мм естественной влажности, с шагом 600мм, установленными на ребро

Первый этаж

Высота потолков 2,10-2,20м (16 венцов).

Стены 1 этажа

Строганный профилированный брус 100х150 (в чистоте 90×140мм) или 150х150 (в чистоте 140×140мм) естественной влажности с наружной стороны прямой или под "блок-хаус", с внутренней стороны прямой, между брусом прокладывается джутовое полотно. Сборка углов производится в "теплый угол" (шип-паз), межвенцовое соединение производится на деревянный нагель

Перегородки 1 этажа

Строганный прямой профилированный брус 100х150 (в чистоте 90х140мм) естественной влажности, межвенцовое соединение производится на деревянный нагель.

Перекрытия

Обрезная нестроганая доска сечением 40х150мм естественной влажности, с шагом 800мм, установленными на ребро

Крыша

Двухскатная (прямая, ломанная или вальмовая в зависимости от проекта)

Покрытие кровли

Ондулин цвет на выбор (коричневого, зеленого, красного или графитового цвета)

Стропильная система

Каркас из нестроганой доски сечением 40х100мм естественной влажности

Обрешетка

Не сплошная, из обрезной нестроганой доски толщиной 20мм, с шагом 400мм

Выносы крыши

По периметру 20-30см, подшиты вагонкой камерной сушки класса «Б»

Фронтоны

Обшиты горизонтально вагонкой камерной сушки

Доставка

Бесплатно 500 км от г. Пестово Новгородской обл., далее 150 рублей за 1км

Сборка

Входит в стоимость

Фундамент

Опорно-столбчатый, каждая опора состоит из четырех бетонных блоков, размером 200х200х400мм. (АКЦИЯ распространяется только при заказе установки такого фундамента)

Основание

Одинарная обвязка - 1 ряд основания из бруса 100х150мм или 150х150мм (в зависимости от толщины стен), естественной влажности.

Лаги

Выполнены из нестроганой доски сечением 40х150мм естественной влажности, с шагом 600мм, установленными на ребро

Полы 1 этаж

Двойные, утепленные мин. ватой URSA (или аналог) 100мм, сверх утеплителя, с нахлестом по контуру монтируется пароизоляция Наноизол В (или аналог):

- черновые: к половым лагам прибивается брусок сечением 40х50мм, на него кладется обрезная нестроганная доска второго сорта 20мм естественной влажности, по черновому полу с нахлестом устраивается пароизоляция Наноизол В (или аналог)

- чистовые: половая шпунтованная доска 28мм, камерной сушки

Первый этаж

Высота потолков 2,00-2,10м (15 венцов)

Стены 1 этажа

Строганный профилированный брус 100х150 (в чистоте 90×140мм) или 150х150 (в чистоте 140×140мм) естественной влажности с наружной стороны прямой или под "блок-хаус", с внутренней стороны прямой, между брусом прокладывается джутовое полотно. Сборка углов в полбруса (закрытый не продуваемый угол), межвенцовое соединение производится на железный нагель.

Перегородки 1 этаж

Каркас из нестроганой доски сечением 40х100мм естественной влажности, обшиты вертикально вагонкой камерной сушки класса «Б», утепление мин. ваты URSA (или аналог) 100мм, пароизоляция Наноизол В (или аналог)

Потолки

Подшиваются вагонкой класса «Б» камерной сушки, утепление мин. ваты URSA (или аналог) 100мм, предварительно под вагонку, с нахлестом по контуру монтируется пароизоляция Наноизол В (или аналог), гвозди для отделки оцинкованные

Перекрытия

Обрезная нестроганая доска сечением 40х150мм естественной влажности, с шагом 800мм, установленными на ребро

Крыша

Двухскатная (прямая, ломанная или вальмовая в зависимости от проекта)

Покрытие кровли

Ондулин цвет на выбор (коричневого, зеленого, красного или графитового цвета)

Стропильная система

Каркас из нестроганой доски сечением 40х100мм естественной влажности

Обрешетка

Не сплошная, из обрезной нестроганой доски толщиной 20мм, с шагом 400мм

Выносы крыши

По периметру 20-30см, подшиты вагонкой камерной сушки класса «Б»

Фронтоны

Обшиты горизонтально вагонкой камерной сушки

Наружные углы

Обшиваются вертикально вагонкой камерной сушки

Моечное отделение

Устанавливается душевой поддон 800х800мм или делаются полы под наклоном с установкой сливного трапа, в полы засыпается керамзит

Парное отделение

Стены и потолок обшиваются вагонкой из осины класса «Б» (стыкованная), предварительно под вагонку по периметру всех стен и потолка прокладывается фольгированная кашированная бумага, устанавливаются двухъярусные прямые полки из строганной осины класса «Б»

Печь

Устанавливается металлическая печь «Каменка» со встроенным баком для горячей воды и дымоходом от печки через стену с искрогасителем и пожарной защитой (дымоход печи укомплектован заглушкой, стены бани возле печки при установке экранируются листами из оцинкованной стали)

Плинтус

На стыки стен, пола и потолка устанавливается плинтус из хвойный пород дерева

В банях, в парном отделении, устанавливается плинтус из осины

Окна

Деревянные однокамерные с фурнитурой, отделаны наличником (имитация стеклопакета)

Двери

Входная филенчатая, межкомнатные филенчатые и банные клиновые

Все двери отделаны наличником

Доставка

Бесплатно 500 км от г. Пестово Новгородской обл., далее 150 рублей за 1км

Сборка

Входит в стоимость

Фундамент

Опорно-столбчатый, каждая опора состоит из четырех бетонных блоков, размером 200х200х400мм. (АКЦИЯ распространяется только при заказе установки такого фундамента)

Основание

Двойная обвязка - 2 ряда основания из нестроганного бруса сечением 100х150мм или 150х150мм (в зависимости от толщины стен), естественной влажности.

Лаги

Выполнены из нестроганой доски сечением 40х150мм естественной влажности, с шагом 600мм, установленными на ребро

Полы

Двойные, утепленные мин. ватой URSA (или аналог) 100мм, сверх утеплителя, с нахлестом по контуру монтируется пароизоляция Наноизол В (или аналог):

- черновые: к половым лагам прибивается брусок сечением 40х50мм, на него кладется обрезная нестроганная доска первого сорта 20мм естественной влажности, по черновому полу с нахлестом устраивается пароизоляция Наноизол В (или аналог)

- чистовые: половая шпунтованная доска 28мм, камерной сушки

Первый этаж

Высота потолков 2,10-2,20м (16 венцов).

Стены

Строганный сухой (камерной сушки) профилированный брус 100х150 (в чистоте 90×140мм) или 150х150 (в чистоте 140×140мм) влажностью 15-20%, с наружной стороны прямой или выпуклый "под блок-хаус", с внутренней стороны прямой, между брусом прокладывается джутовое полотно. Сборка углов производится в "теплый угол" (шип-паз), межвенцовое соединение производится на деревянный нагель.

Перегородки 1 этажа

Прямой строганный сухой (камерной сушки)профилированный брус 100х150 (в чистоте 90х140мм) влажностью 15-20%, между брусом прокладывается джутовое полотно, межвенцовое соединение производится на деревянный нагель

Потолки

Подшиваются вагонкой класса «Б» камерной сушки, утепление мин. ваты URSA (или аналог) 100мм, предварительно под вагонку, с нахлестом по контуру монтируется пароизоляция Наноизол В (или аналог), гвозди для отделки оцинкованные

Перекрытия

Обрезная нестроганая доска сечением 40х150мм естественной влажности, с шагом 800мм, установленными на ребро

Крыша

Двухскатная (прямая, ломанная или вальмовая в зависимости от проекта)

Покрытие кровли

Ондулин цвет на выбор (коричневого, зеленого, красного или графитового цвета)

Стропильная система

Каркас из нестроганой доски сечением 40х100мм естественной влажности

Обрешетка

Не сплошная, из обрезной нестроганой доски толщиной 20мм, с шагом 400мм

Выносы крыши

По периметру 20-30см, подшиты вагонкой камерной сушки класса «Б»

Фронтоны

Обшиты горизонтально вагонкой камерной сушки

Наружные углы

Обшиваются вертикально вагонкой камерной сушки

Моечное отделение

Устанавливается душевой поддон 800х800мм или делаются полы под наклоном с установкой сливного трапа, в полы засыпается керамзит

Парное отделение

Стены и потолок обшиваются вагонкой из осины класса «А» (стыкованная), предварительно под вагонку по периметру всех стен и потолка прокладывается фольгированная кашированная бумага, устанавливаются прямые двухъярусные полки из строганной осины класса «А»

Печь

Устанавливается банная печь "Ермак 16" классический (сэндвич трубы, облицовка кирпичом, выносной бак на 60 литров ставится через теплообменник, ППУ, экран со светоотражающей поверхностью)

Плинтус

На стыки стен, пола и потолка устанавливается плинтус из хвойный пород дерева

В банях, в парном отделении, устанавливается плинтус из осины

Окна

Деревянные однокамерные с фурнитурой, отделаны наличником (имитация стеклопакета)

Двери

Входная металлическая (производитель Россия), межкомнатные филенчатые и банные клиновые

Все двери отделаны наличником

Доставка

Бесплатно 500 км от г. Пестово Новгородской обл., далее 150 рублей за 1км

Сборка

Входит в стоимость

Фундамент

Опорно-столбчатый, каждая опора состоит из четырех бетонных блоков, размером 200х200х400мм. (АКЦИЯ распространяется только при заказе установки такого фундамента)

Основание

Двойная, первый ряд нестроганый брус сечением 100х150 или 150х150мм (в зависимости от толщины стен) естественной влажности, второй контур из строганной доски сечением 38х140мм камерной сушки устанавливается на ребро

Лаги

Выполнены из строганной доски сечением 38х140мм камерной сушки, с шагом 600мм, установленными на ребро

Полы

Двойные, утепленные каменной ватой ROCKWOOL 100мм или 150мм (в зависимости от комплектации), сверх утеплителя, с нахлестом по контуру монтируется пароизоляция Наноизол В (или аналог):

- черновые: к половым лагам прибивается брусок сечением 40х50мм, на него кладется обрезная нестроганая доска первого сорта 20мм естественной влажности, по черновому полу с нахлестом устраивается пароизоляция Наноизол В (или аналог);

- чистовые: половая шпунтованная доска 28мм, камерной сушки.

Первый этаж

Высота потолков 2,15-2,25м.

Стены

Каркас из обрезной строганной доски сечением 38х90мм или 38х140мм камерной сушки (в зависимости от слоя утепления). Утепление каменной ватой ROCKWOOL.

С внутренней стороны обшиты вагонкой класса «Б» камерной сушки предварительно с нахлестом по контуру монтируется пароизоляция Наноизол В (или аналог).

С наружной стороны обшиты имитацией бруса с прокладкой ветро-влагозащиты Наноизол А (или аналог) через контрбрус.

Перегородки

Каркас из обрезной строганной доски сечением 38х90мм камерной сушки, с наружной и внутренней стороны обшиты вагонкой класса «Б» камерной сушки, с прокладкой пароизоляция Наноизол В (или аналог). Утепление каменной ватой ROCKWOOL.

Потолки

Подшиваются вагонкой камерной сушки класса «Б», утепление каменной ватой ROCKWOOL 100мм или 150мм (в зависимости от комплектации), пароизоляция Наноизол В (или аналог), гвозди для отделки оцинкованные, углы внутренних помещений отделаны плинтусом.

Перекрытия

Обрезная нестроганая доска сечением 40х150мм естественной влажности, с шагом 800мм, установленными на ребро

Крыша

Двухскатная (прямая, ломанная или вальмовая в зависимости от проекта)

Покрытие кровли

Ондулин цвет на выбор (коричневого, зеленого, красного или графитового цвета)

Стропильная система

Каркас из нестроганой доски сечением 40х100мм естественной влажности

Обрешетка

Не сплошная, из обрезной нестроганой доски толщиной 20мм, с шагом 400мм

Выносы крыши

По периметру 20-30см, подшиты вагонкой камерной сушки класса «Б»

Фронтоны

Обшиты горизонтально имитацией бруса

Наружные углы

Обшиваются вертикально вагонкой камерной сушки

Моечное отделение

Устанавливается душевой поддон 800х800мм или делаются полы под наклоном с установкой сливного трапа, в полы засыпается керамзит

Парное отделение

Стены и потолок обшиваются вагонкой из осины класса «А» (стыкованная), предварительно под вагонку по периметру всех стен и потолка прокладывается фольгированная кашированная бумага, устанавливаются прямые двухъярусные полки из строганной осины класса «А»

Печь

Устанавливается банная печь "Ермак 16" классический (сэндвич трубы, облицовка кирпичом, выносной бак на 60 литров ставится через теплообменник, ППУ, экран со светоотражающей поверхностью)

Плинтус

На стыки стен, пола и потолка устанавливается плинтус из хвойный пород дерева

В банях, в парном отделении, устанавливается плинтус из осины

Окна

Деревянные однокамерные с фурнитурой, отделаны наличником (имитация стеклопакета)

Двери

Входная металлическая (производитель Россия), межкомнатные филенчатые и банные клиновые

Все двери отделаны наличником

Доставка

Бесплатно 500 км от г. Пестово Новгородской обл., далее 150 рублей за 1км

Сборка

Входит в стоимость

Дополнительные услуги

Дополнительная опора столбчатого фундамента 800 руб
Свайно-винтовой фундамент по запросу
Дополнительный венец профилированного бруса по запросу
Дополнительная межкомнатная перегородка по запросу
Сборка сруба на деревянные нагеля от 3 000 руб за ряд
Сборка сруба на пружинный узел "Сила" по запросу
Угловое соединение «теплый угол» (шип-паз) от 3 000 руб за ряд
Установка водосточной системы по запросу
Дополнительное утепление минеральной ватой 50мм по запросу
Установка однокамерного деревянного окна 1х1,20м 6 000 руб
Установка железной двери (2070×670мм) 12 000 руб
Замена банной клиновой двери на стеклянную 9 000 руб
Замена деревянного однокамерного окна размером 1х1,20м на пластиковое однокамерное окно размером 1х1,20м 5 000 руб
Замена деревянного однокамерного окна размером 0,4х0,4м на пластиковое однокамерное окно размером 0,5х0,5м 4 000 руб
Монтаж металлических роек из уголка 40х40мм в оконный проем 1 500 руб
Монтаж металлических роек из уголка 40х40мм в дверной проем 3 000 руб
Замена кровли на металлочерепицу по запросу
Замена бруса естественной влажности на сухой (камерная сушка) по запросу
Работы (без учёта материала) по обработке / покраске фасадов дома 600 руб/м2
Строительная бытовка

Размер 2х3м

23 000 руб
Стол и лавка по запросу
Аренда генератора

Бензин предоставляет Заказчик

13 000 руб

Заказать звонок

Заказать строительство

Напишите нам в эту форму, если Вы хотите оформить заказ на строительство по этому проекту, или если у Вас есть какой либо вопрос.

Также Вы можете позвонить нам по телефону:
+7 (996) 777-15-69, +7 (921) 706-00-28

Отправить проект

Если у вас есть свой проект или эскиз дома или бани, или Вы увидели интересный проект на другом сайте, Вы можете отправить его нам на расчет стоимости строительства. Для этого заполните форму ниже. Укажите максимум  информации, чтобы расчет был более точным. После расчета (1-2 дня) наш менеджер свяжется с Вами.

Максимальный размер файла: 2 МБ.
Разрешённые типы файлов: gif jpg jpeg png bmp eps tif pict psd pdf doc docx xls xlsx.
Максимальный размер файла: 2 МБ.
Разрешённые типы файлов: gif jpg jpeg png bmp eps tif pict psd rtf pdf doc docx xls xlsx.
Максимальный размер файла: 2 МБ.
Разрешённые типы файлов: gif jpg jpeg png bmp eps tif pict psd rtf pdf doc docx xls xlsx.

Если Вы загружаете свой проект, не
забудьте нажать кнопку «Закачать»,
иначе мы не получим файл