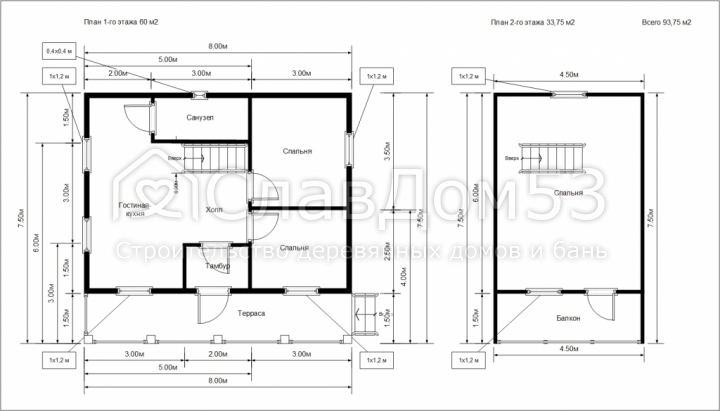
Проект Д-14. Дом из бруса 7,5х8м

Сообщение об ошибке

  • Notice: Trying to get property of non-object в функции am_gal_panels_pane_content_alter() (строка 168 в файле sites/all/modules/am_gal/am_gal.module).
  • Notice: Trying to get property of non-object в функции am_gal_panels_pane_content_alter() (строка 168 в файле sites/all/modules/am_gal/am_gal.module).
  • Notice: Trying to get property of non-object в функции am_gal_panels_pane_content_alter() (строка 168 в файле sites/all/modules/am_gal/am_gal.module).
  • Notice: Trying to get property of non-object в функции am_gal_panels_pane_content_alter() (строка 168 в файле sites/all/modules/am_gal/am_gal.module).
  • Notice: Trying to get property of non-object в функции am_gal_panels_pane_content_alter() (строка 168 в файле sites/all/modules/am_gal/am_gal.module).
Размер:
7,5х8 м
Общая площадь:
93,75 м²
Количество этажей:
Двухэтажный
Срок строительства:
20-25 дней
Цена «Под усадку»
Проф. брус 100×150
По запросу
Проф. брус 150×150
По запросу
Цена «Под ключ»
Проф. брус 100×150
По запросу
Проф. брус 150×150
По запросу

Фотоотчеты по этому проекту

СНТ Радуга, Калининский район,Тверская область

Видеообзоры по этому проекту

Описание комплектации
Фундамент

Не входит в стоимость

Основание

Двойная обвязка - 2 ряда основания из нестроганного бруса сечением 100х150мм или 150х150мм (в зависимости от толщины стен), естественной влажности.

Лаги

Выполнены из нестроганой доски сечением 40х150мм естественной влажности, с шагом 600мм, установленными на ребро

Первый этаж

Высота потолков 2,25-2,35м (17 венцов).

Стены 1 этажа

Строганный профилированный брус 100х150 (в чистоте 90×140мм) или 150х150 (в чистоте 140×140мм) естественной влажности с наружной стороны прямой или под "блок-хаус", с внутренней стороны прямой, между брусом прокладывается джутовое полотно. Сборка углов производится в "теплый угол" (шип-паз), межвенцовое соединение производится на деревянный нагель

Перегородки 1 этажа

Строганный прямой профилированный брус 100х150 (в чистоте 90х140мм) естественной влажности, межвенцовое соединение производится на деревянный нагель.

Перекрытия

Обрезная нестроганая доска сечением 40х150мм естественной влажности, с шагом 800мм, установленными на ребро

Второй этаж

Высота потолков 2,25-2,35м.

Стены 2 этаж

Каркас из нестроганой доски сечением 40х100мм естественной влажности

Лаги 2 этаж

Выполнены из обрезной нестроганой доски сечением 40х150мм естественной влажности, с шагом 800мм, установленными на ребро

Крыша

Двухскатная (прямая, ломанная или вальмовая в зависимости от проекта)

Покрытие кровли

Ондулин цвет на выбор (коричневого, зеленого, красного или графитового цвета)

Стропильная система

Каркас из нестроганой доски сечением 40х100мм естественной влажности

Обрешетка

Обрешетка монтируется из обрезных нестроганых досок первого сорта толщиной 20мм с шагом 400мм. Предварительно укладывается подкровельная пленка Изоспан D с нахлестом, проходящая через контробрешетку.

Вынос крыши

По периметру 30-40см, подшиты вагонкой естественной влажности.

Фронтоны

Обшиты горизонтально вагонкой камерной сушки

Доставка

Бесплатно 500 км. от города Пестово Новгородской обл., далее за перепробег по 150 рублей за 1 км.

Покраска

В базовой конфигурации не предусмотрена покраска сооружения

Сборка на участке

Входит в стоимость

Фундамент

Не входит в стоимость

Основание

Двойная обвязка - 2 ряда основания из нестроганного бруса сечением 100х150мм или 150х150мм (в зависимости от толщины стен), естественной влажности.

Лаги

Выполнены из нестроганой доски сечением 40х150мм естественной влажности, с шагом 600мм, установленными на ребро

Полы 1 этаж

Двойные, утепленные мин. ватой Knauf (или аналог) 100мм, сверх утеплителя, с нахлестом по контуру монтируется пароизоляция Наноизол В (или аналог):
- черновые: к половым лагам прибивается брусок сечением 40х50мм, на него кладется обрезная нестроганая доска первого сорта 20мм естественной влажности, по черновому полу огибая лаги (балки) с нахлестом устраивается ветро-влагозащита Наноизол А (или аналог);
- чистовые: половая шпунтованная доска 28мм, камерной сушки

 

Первый этаж

Высота потолков 2,25-2,35м (17 венцов).

Стены 1 этажа

Строганный профилированный брус 100х150 (в чистоте 90×140мм) или 150х150 (в чистоте 140×140мм) естественной влажности с наружной стороны прямой или под "блок-хаус", с внутренней стороны прямой, между брусом прокладывается джутовое полотно. Сборка углов производится в "теплый угол" (шип-паз), межвенцовое соединение производится на деревянный нагель

Перегородки 1 этажа

Прямой строганный профилированный брус 100х150 (в чистоте 90х140мм) естественной влажности, между брусом прокладывается джутовое полотно, межвенцовое соединение производится на деревянный нагель.

Потолки

Внутренняя отделка потолка осуществляется с использованием вагонки класса «Б», прошедшей камерную сушку. Для обеспечения теплоизоляции применяется минеральная вата марки Knauf (или аналог) толщиной 100мм. Перед установкой вагонки с необходимым нахлестом по периметру монтируется пароизоляционный слой, выполненный из материала «Наноизол В» (или аналог), гвозди для отделки оцинкованные

Перекрытия

Обрезная нестроганая доска сечением 40х150мм естественной влажности, с шагом 800мм, установленными на ребро

Второй этаж

Высота потолков 2,25-2,35м.

Лаги 2 этаж

Выполнены из обрезной нестроганой доски сечением 40х150мм естественной влажности, с шагом 800мм, установленными на ребро

Полы 2 этаж

Чистовая отделка: половая шпунтованная доска толщиной 28мм, камерной сушки. Утепление: минеральная вата Knauf (или аналог) толщиной 100мм

Перегородки 2 этаж

Каркас из нестроганой доски сечением 40х100мм естественной влажности, обшиты горизонтально вагонкой камерной сушки класса «Б», утепление минеральной ваты Knauf (или аналог) 100мм, предварительно под вагонку, с нахлестом по контуру монтируется пароизоляция Наноизол В (или аналог).

Потолки 2 этаж

Внутренняя отделка потолка осуществляется с использованием вагонки класса «Б», прошедшей камерную сушку. Для обеспечения теплоизоляции применяется минеральная вата марки Knauf (или аналог) толщиной 100мм. Перед установкой вагонки с необходимым нахлестом по периметру монтируется пароизоляционный слой, выполненный из материала «Наноизол В» (или аналог).

Крыша

Двухскатная (прямая, ломанная или вальмовая в зависимости от проекта)

Покрытие кровли

Ондулин цвет на выбор (коричневого, зеленого, красного или графитового цвета)

Стропильная система

Каркас из нестроганой доски сечением 40х100мм естественной влажности

Обрешетка

Обрешетка монтируется из обрезных нестроганых досок первого сорта толщиной 20мм с шагом 400мм. Предварительно укладывается подкровельная пленка Изоспан D с нахлестом, проходящая через контробрешетку.

Вынос крыши

По периметру 30-40см, подшиты вагонкой естественной влажности.

Фронтоны

Обшиты горизонтально вагонкой камерной сушки

Наружные углы

Обшиваются вертикально вагонкой камерной сушки

Лестница

Деревянная одномаршевая лестница, ведущая с первого на второй этаж, оснащена перилами и балясинами. На втором этаже предусмотрено ограждение.

Плинтус

На стыки стен, пола и потолка устанавливается плинтус из хвойный пород дерева

В банях, в парном отделении, устанавливается плинтус из осины

Окна

Деревянные однокамерные с фурнитурой, отделаны наличником (имитация стеклопакета)

Двери

Входная металлическая (производитель Россия), межкомнатные филенчатые.

Доставка

Бесплатно 500 км. от города Пестово Новгородской обл., далее за перепробег по 150 рублей за 1 км.

Покраска

В базовой конфигурации не предусмотрена покраска сооружения

Электрика

К сожалению, монтаж электрических систем не предусмотрен в рамках наших базовых комплектациях

Сборка на участке

Входит в стоимость

Ваш путь к готовому дому или бане
Шаг 1. Определите ваши пожелания
Выберите проект из каталога или определите
для себя желаемый размер, планировку и
бюджет.
Шаг 2. Оставьте заявку
Свяжитесь с нами удобным для вас способом,
указав выбранный проект и желаемую
комплектацию.
Шаг 3. Бесплатная консультация
Обсудим все пожелания, при необходимости
бесплатно доработаем планировку и
адаптируем проект под вас.
Шаг 4. Точный расчет стоимости
Составляем техническое задание и
озвучиваем точную стоимость строительства
без каких-либо скрытых расходов.
Шаг 5. Заключение договора
Согласовываем официальный договор, в котором
фиксируем все важные аспекты: цену, сроки,
гарантии и прочие детали.
Шаг 6. Подготовка к строительству
Мы заготавливаем стройматериалы, проверяем их
качество, комплектуем машину и готовимся
выезжать к вам.
Шаг 7. Выезд на ваш участок
Согласовываем дату заезда. В назначенный
день на участок доставляется весь комплект
материалов и строительная бригада.
Шаг 8. Сборка строения
Мастера собирают объект по техническому
заданию. По желанию присылаем
фотоотчеты о ходе работ.
Шаг 9. Прием готового объекта
Вместе осматриваем готовое строение,
проверяем качество. Если все в порядке,
подписываем акт.
Шаг 10. Официальная гарантия
Мы предоставляем официальную гарантию на
материалы и работы. Теперь вы можете
наслаждаться своим новым домом или баней.
Шаг 11. Постоянная поддержка
Мы остаемся на связи и после сдачи объекта. Если возникнут
вопросы по эксплуатации — смело обращайтесь!

Дополнительные услуги

Дополнительная опора столбчатого фундамента 800 руб
Свайно-винтовой фундамент по запросу
Дополнительный венец профилированного бруса по запросу
Дополнительная межкомнатная перегородка по запросу
Сборка сруба на деревянные нагеля от 3 000 руб за ряд
Сборка сруба на пружинный узел "Сила" по запросу
Угловое соединение «теплый угол» (шип-паз) от 3 000 руб за ряд
Установка водосточной системы по запросу
Дополнительное утепление минеральной ватой 50мм по запросу
Установка однокамерного деревянного окна 1х1,20м 6 000 руб
Установка железной двери (2070×670мм) 12 000 руб
Замена банной клиновой двери на стеклянную 9 000 руб
Замена деревянного однокамерного окна размером 1х1,20м на пластиковое однокамерное окно размером 1х1,20м 5 000 руб
Замена деревянного однокамерного окна размером 0,4х0,4м на пластиковое однокамерное окно размером 0,5х0,5м 4 000 руб
Монтаж металлических роек из уголка 40х40мм в оконный проем 1 500 руб
Монтаж металлических роек из уголка 40х40мм в дверной проем 3 000 руб
Замена кровли на металлочерепицу по запросу
Замена бруса естественной влажности на сухой (камерная сушка) по запросу
Работы (без учёта материала) по обработке / покраске фасадов дома 600 руб/м2
Строительная бытовка

Размер 2х3м, устанавливается на блоки

25 000 руб
Стол и лавка по запросу
Аренда генератора

Бензин предоставляет Заказчик

15 000 руб
Спросить в МАХ или VK

Заказать звонок

CAPTCHA
Этот вопрос задается для того, чтобы выяснить, являетесь ли Вы человеком или представляете из себя автоматическую спам-рассылку.

Заказать строительство

Напишите нам в эту форму, если Вы хотите оформить заказ на строительство по этому проекту, или если у Вас есть какой либо вопрос.

Также Вы можете позвонить нам по телефону:
+7 (996) 777-15-69, +7 (921) 706-00-28

CAPTCHA
Этот вопрос задается для того, чтобы выяснить, являетесь ли Вы человеком или представляете из себя автоматическую спам-рассылку.

Отправить проект

Если у вас есть свой проект или эскиз дома или бани, или Вы увидели интересный проект на другом сайте, Вы можете отправить его нам на расчет стоимости строительства. Для этого заполните форму ниже. Укажите максимум  информации, чтобы расчет был более точным. После расчета (1-2 дня) наш менеджер свяжется с Вами.

Максимальный размер файла: 2 МБ.
Разрешённые типы файлов: gif jpg jpeg png bmp eps tif pict psd pdf doc docx xls xlsx.
Максимальный размер файла: 2 МБ.
Разрешённые типы файлов: gif jpg jpeg png bmp eps tif pict psd rtf pdf doc docx xls xlsx.
Максимальный размер файла: 2 МБ.
Разрешённые типы файлов: gif jpg jpeg png bmp eps tif pict psd rtf pdf doc docx xls xlsx.

Если Вы загружаете свой проект, не
забудьте нажать кнопку «Закачать»,
иначе мы не получим файл

CAPTCHA
Этот вопрос задается для того, чтобы выяснить, являетесь ли Вы человеком или представляете из себя автоматическую спам-рассылку.